Nowoczesne magazyny – lokalizacja Zielona Góra
Innowacyjne wyposażenie magazynów i ich optymalne zagospodarowanie dają pewność szybkich, bezpiecznych i bezbłędnie przeprowadzanych procesów magazynowo-logistycznych. Nasze magazyny znajdują się blisko zachodniej granicy Polski, co z pewnością stanowi atut przy realizacji przesyłek do krajów UE. Magazynowanie towaru tuż przy granicy daje gwarancję dostawy przesyłki zgodnie z przyjętymi u naszych zachodnich sąsiadów standardami.
Nowa inwestycja – magazyn Racula
Oferujemy wynajem nowoczesnej hali magazynowej wraz z powierzchnią biurowo – socjalną o łącznej powierzchni 3 630 m2. Oferowana powierzchnia spełni oczekiwania najemców ceniących sobie standard i funkcjonalność. Powierzchnia dostępna będzie w okresie około 10 mcy od dnia podpisania umowy najmu (minimalny okres obowiązywania umowy najmu to 5 lat). Dodatkowo wskazujemy, iż zaproponowany przez nas układ pomieszczeń w części socjalnej zostanie dopasowany do potrzeb Najemcy uwzględniając liczbę zatrudnienia oraz rodzaj wykonywanych usług.
Główne parametry inwestycji:
LOKALIZACJA
Racula, ul. Wierzbowa
Zielona Góra
POWIERZCHNIA DZIAŁKI
13 700 m2
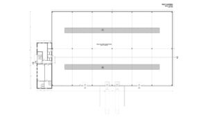
DOSTĘPNA CAŁKOWITA OBIEKTU
3 630 m2
POWIERZCHNIA CZĘŚCI MAGAZYNOWEJ
3 200 m2
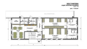
POWIERZCHNIA BIUROWO-SOCJALNA
(215 m2 parter oraz 215 m2 piętro)
430 m2
Warunki najmu
Media wg. zużycia
Kaucja – do ustalenia
Czynsz: hala magazynowa 25zł/1m²
Czynsz: część biuro – socjalna 40zł/1m²
Opłata eksploatacyjna – na jej wysokość wpływ będą miały wszystkie faktyczne koszty operacyjne obiektu (koszty ubezpieczenia, koszty podatków od nieruchomości, itp.)












